Den centrala transmissionsstrukturen används vanligtvis för att skrapa det nedre slammet i olika cirkulära sedimentationstankar med en tankdiameter på mindre än 18 m (i allmänhet är vattenvolymen för en enda tank mindre än 600 ton/). Normalt släpps det centrala slammet ut och vatten släpps ut från periferin. ZXG Central Drive Slame Scraper används vanligtvis för kommunalt avloppsvatten och liknande avloppsvatten. Slammets specifika tyngdkraft är relativt lätt (i allmänhet mindre än 1,2 ton/m) och icke-härdande poolbotten slam. I allmänhet finns det ingen skumskskorfunktion och en lutning kan installeras i poolen. Tallrik eller lutande rör för att förbättra nederbördseffekten.
ZXN Center Drive Concentrator liknar ZXG -typen. Det används främst för att ytterligare tjockna slammet som släpps ut från den vanliga sedimentationstanken. Strukturen har en ytterligare rutnätsektion (ökar slamens kompakthet) jämfört med slamskrapan.
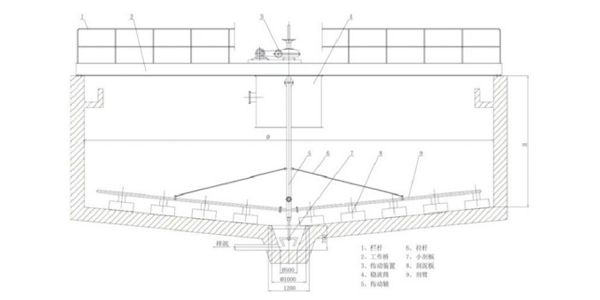
Working Bridge Structure: Stålstråltyp ska användas om pooldiametern är mindre än 10 meter, och fackstrålen ska användas om pooldiametern är större än 10 meter.

















